380.000€
EL ESTILO DE VIDA MEDITERRÁNEO TODO EN UN NIVEL
El pueblo de Daya Nueva es la combinación perfecta entre un estilo de vida rural tranquilo y confortable y las vibrantes zonas costeras de la Costa Blanca a un corto trayecto en coche.
Esta promoción de villas semi independientes y independientes de obra nueva ha sido diseñada con toda la atención al detalle y construido con un alto nivel de detalles. Todas las villas tendrán su propia piscina privada.
TU PROPIO ESPACIO PARA VIVIR, TODO A UN NIVEL
Se ha incorporado un enfoque luminoso, fresco y moderno en el diseño.
Ubicadas en un pequeño pueblo en el sur de la provincia de Alicante. El pueblo se llama Daya Nueva.
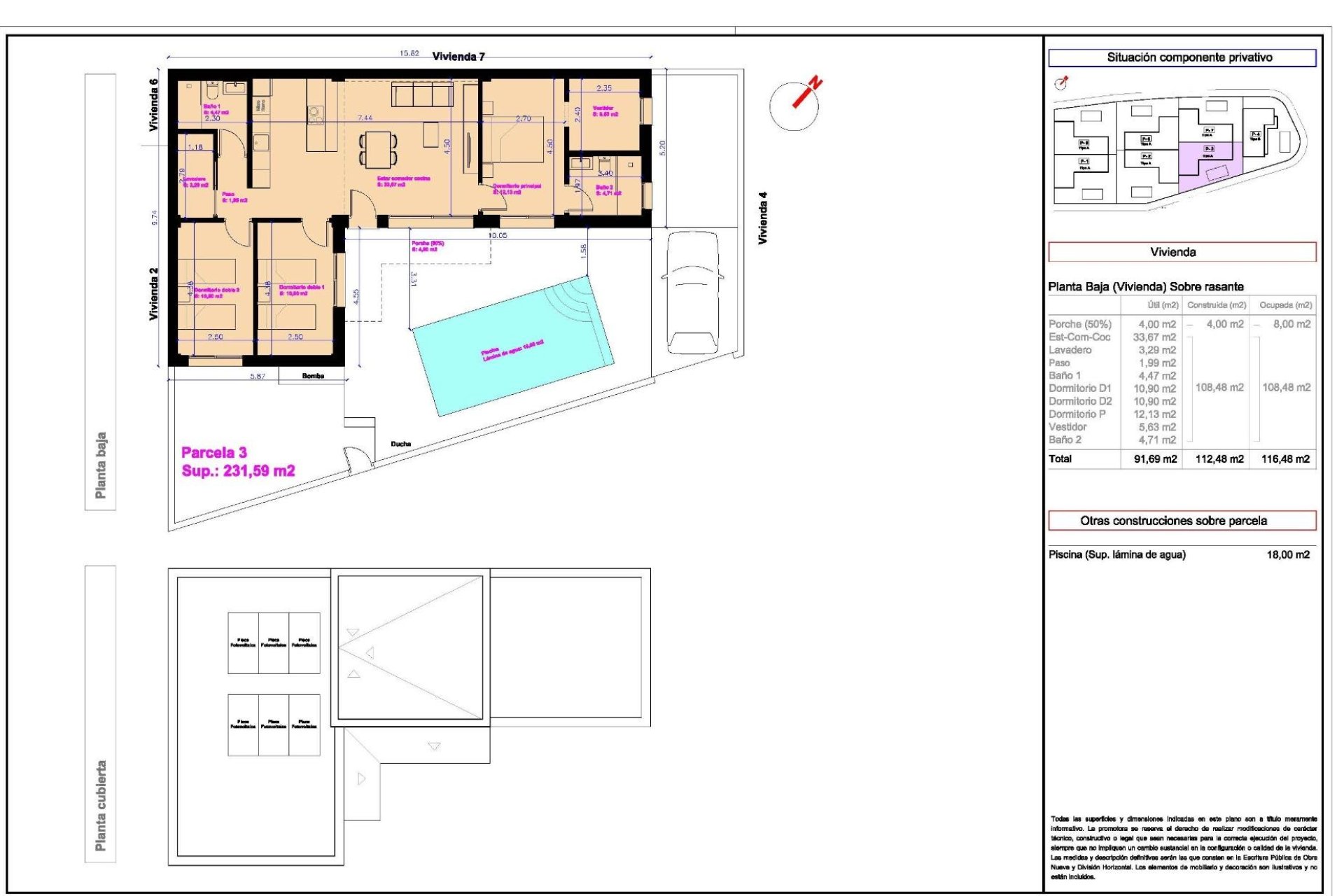
Villas de nueva construcción en una sola planta en la parte nueva de Daya Nueva. A pocos minutos andando del centro del pueblo. La propiedad consta de 3 dormitorios, 2 baños y una piscina privada de 18m2. Salón / comedor con techo de doble altura, cocina abierta, luz natural y opción para solarium con un coste extra. El dormitorio principal tiene opción de walk in closet y baño en suite.
Situado en una zona residencial nueva y tranquila, a unos 10 minutos de la playa de La Marina del Pinet y Guardamar del Segura. Fácil acceso a la autopista A-70 y aproximadamente a 25 minutos del aeropuerto internacional de Alicante.