970.000€
Villa nueva llave en mano con vistas al mar en La Alberca Polop
Villa moderna de lujo en un entorno natural de montaña
Esta villa contemporánea llave en mano se encuentra en La Alberca, una tranquila zona residencial de Polop, rodeada de bosques y montañas. Situada en un entorno elevado, la propiedad disfruta de vistas panorámicas al mar Mediterráneo, las montañas y el centro histórico de Polop. La villa ofrece privacidad, tranquilidad y excelentes conexiones con la costa y las localidades cercanas.
Polop es un encantador pueblo de la comarca de la Marina Baixa, en la Costa Blanca, conocido por su carácter tradicional y su entorno natural. La propiedad está cerca de todos los servicios de La Nucía, incluyendo tiendas, restaurantes, centros deportivos y colegios, mientras que las playas y las animadas localidades costeras se encuentran a poca distancia en coche.
Amplia distribución entre la planta principal, el sótano y el solárium
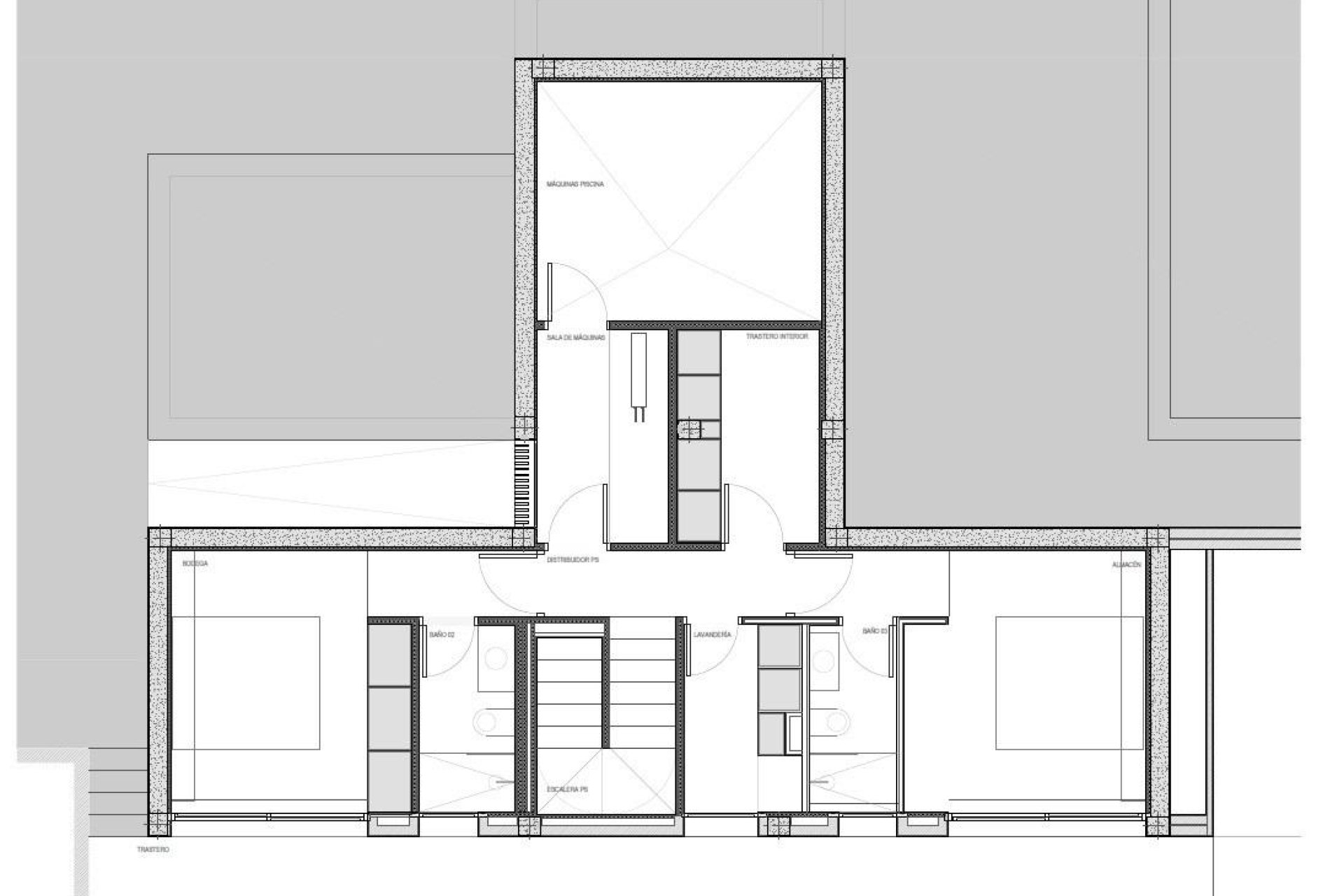
La villa se distribuye en una planta principal, un sótano y un solárium en la azotea, lo que ofrece un amplio espacio habitable y flexibilidad.
En la planta principal, un acogedor vestíbulo de entrada con armario empotrado conduce a dos dormitorios en suite, incluida una suite principal con puertas ventanas elevables que dan a un balcón Juliette y a una terraza. La sala de estar y el comedor de planta abierta conectan a la perfección con una terraza cubierta con pérgola y una piscina privada de agua salada.
El sótano cuenta con dos dormitorios adicionales con baño, grandes ventanas, una sala de juegos o cine flexible con conexiones de agua y electricidad para una zona de bar, un lavadero totalmente equipado con electrodomésticos Haier y dos cuartos técnicos.
El solárium de la azotea ofrece un amplio espacio al aire libre con vistas panorámicas al mar y está preparado para la futura instalación de paneles solares. Una cocina al aire libre, múltiples armarios y un jardín de estilo mediterráneo con riego automático completan el exterior.
Características de alta gama y eficiencia energética
Esta villa destaca por sus acabados de primera calidad y sus instalaciones avanzadas, entre las que se incluyen:
Isla de cocina central con electrodomésticos BOSCH integrados
Encimeras de piedra natural en interiores y exteriores
Preinstalación de calefacción por suelo radiante
Sistema de aire acondicionado aerotérmico Mitsubishi
Clasificación de eficiencia energética Clase A
Preinstalación para sistema domótico
Piscina de agua salada con calefacción opcional
Aparcamiento privado para dos vehículos
Las grandes ventanas con cristales de protección solar maximizan la luz natural y garantizan el confort y la seguridad.
Excelente ubicación y distancias
Centro de Polop a 2 km
La Nucia a 4 km
Benidorm a 12 km
Altea a 10 km
Playas a 10 km
Villaitana Golf a 14 km
Aeropuerto de Alicante a 65 km
Asegúrese la casa de sus sueños en Polop
Esta excepcional villa llave en mano combina privacidad, diseño y vistas panorámicas en una de las zonas más atractivas del interior de la Costa Blanca. Póngase en contacto con nosotros hoy mismo para concertar una visita privada y hacer de esta lujosa villa en La Alberca Polop su nuevo hogar.