Villas neuves situées à La Romana.
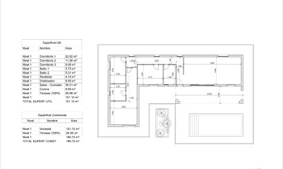
Villas neuves avec plusieurs modèles au choix, comprenant 2 ou 3 chambres, sur un ou deux étages et construites avec dalle ou structure : le prix exact sera calculé en fonction du modèle et du terrain choisi.
Toutes les villas sont construites sur des terrains rustiques de plus de 10 000 m², dont 2 500 m² seront clôturés.
Les villas disposent d'une cuisine américaine avec salon, placards intégrés, piscine privée, porche et place de parking extérieure.
Plusieurs terrains sont disponibles, le prix a été calculé sur la base d'un terrain de 62 000 euros (si vous choisissez un autre terrain, la différence sera payée ou remboursée en fonction du prix de celui-ci).
Réalisé en autopromotion, livraison dans un délai de 12 mois à compter de l'octroi du permis.
Si vous recherchez un environnement calme, à proximité de villages espagnols typiques, loin du tourisme de masse, entouré de montagnes, avec un très grand terrain et à environ 30 minutes de la mer, cette maison est faite pour vous.
La Romana est un village espagnol typique avec tous les services nécessaires à la vie quotidienne, entouré de montagnes et de plusieurs sites naturels à proximité où vous pourrez faire des randonnées ou du VTT.
Situé à 30 minutes de l'aéroport d'Alicante.