385.000€
Introducing a stunning, modern independent villa, to be built on expansive rustic plots just outside the charming town of Pinoso. This single-level villa will be set on a nearly flat, 10,061 m² plot, fully fenced and adorned with olive trees for easy maintenance. The property offers breathtaking panoramic views of the surrounding vineyards, the valley, and the town of Pinoso.
Key Features of the Villa:
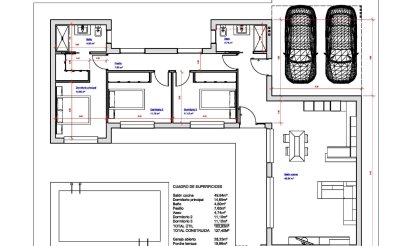
- Modern Design: The villa features a sleek, contemporary style with 3 spacious bedrooms and 2 fully equipped bathrooms.
- Open-Plan Living: A large, open-concept kitchen flows seamlessly into an expansive lounge area, providing a bright and inviting space for living and entertaining.
- High-Quality Finishes: Bedrooms include built-in wardrobes finished in elegant white lacquer, while the bathrooms come fully equipped with all fixtures, lighting, and shower screens.
- Comfort & Convenience: Pre-installation for a fireplace in the living room and air conditioning ensures comfort throughout the year.
- Outdoor Living: A private swimming pool, a garage with space for two cars, and an automatic motorized gate provide convenience and luxury.
Quality Construction & Energy Efficiency:
This villa is constructed with the highest quality materials, ensuring excellent insulation and energy efficiency:
- Thermal-Clay Bricks & Rock Wool Insulation: Provides superior thermal and acoustic insulation for year-round comfort.
- Single-Layer Facade: A sleek, modern finish that complements the villa's contemporary design while enhancing durability.
- Thermal Bridge Windows & Aluminium Shutters: These high-performance windows improve energy efficiency, keeping the villa warm in winter and cool in summer.
Optional Extras: Photovoltaic solar panels for sustainable electricity and a pool heating system for year-round enjoyment.
Perfect Rural Escape:
If you are seeking peace and tranquillity in a traditional Spanish setting, this villa offers the ideal environment. Surrounded by mountains, vineyards, and olive groves, yet only 45 minutes from Alicante and the white sandy beaches of the Costa Blanca, this is the perfect balance of rural charm and accessibility.
The Town of Pinoso:
Pinoso, or El Pinos, is a picturesque town with a population of just under 8,000, renowned for its scenic pine-covered mountains. Offering a true Spanish rural lifestyle, Pinoso is a peaceful retreat with little traffic—where the only "traffic jams" are tractors transporting grapes to the local Bodega. The area is rich with vineyards, almond, and olive orchards, turning into a sea of pink blossoms each February.
Pinoso has a range of amenities, including numerous bars, restaurants, and shops, a modern 24-hour medical centre, dentists, primary and secondary schools, a theatre, and a sports complex featuring swimming pools, tennis courts, football pitches, and a gym. There’s also a beautiful picnic area nestled among the pines, complete with barbecues and seating areas.
Construction Timeline:
The villa will be completed within 10 months from the issuance of the building license, allowing you to enjoy your dream home in under a year.
For those in search of a quiet, picturesque setting close to the authentic charm of Spanish village life, this exceptional villa is the perfect place to call home.