970.000€
Key Ready New Build Villa with Sea Views in La Alberca Polop
Luxury Modern Villa in a Natural Mountain Setting
This key ready contemporary villa is located in La Alberca, a quiet residential area of Polop, surrounded by forest and mountains. Positioned in an elevated setting, the property enjoys panoramic views of the Mediterranean Sea, the mountains and the historic town center of Polop. The villa offers privacy, tranquility and excellent connections to the coast and nearby towns.
Polop is a charming village in the Marina Baixa region of the Costa Blanca, known for its traditional character and natural surroundings. The property is close to all services in La Nucia, including shops, restaurants, sports centers and schools, while the beaches and vibrant coastal towns are just a short drive away.
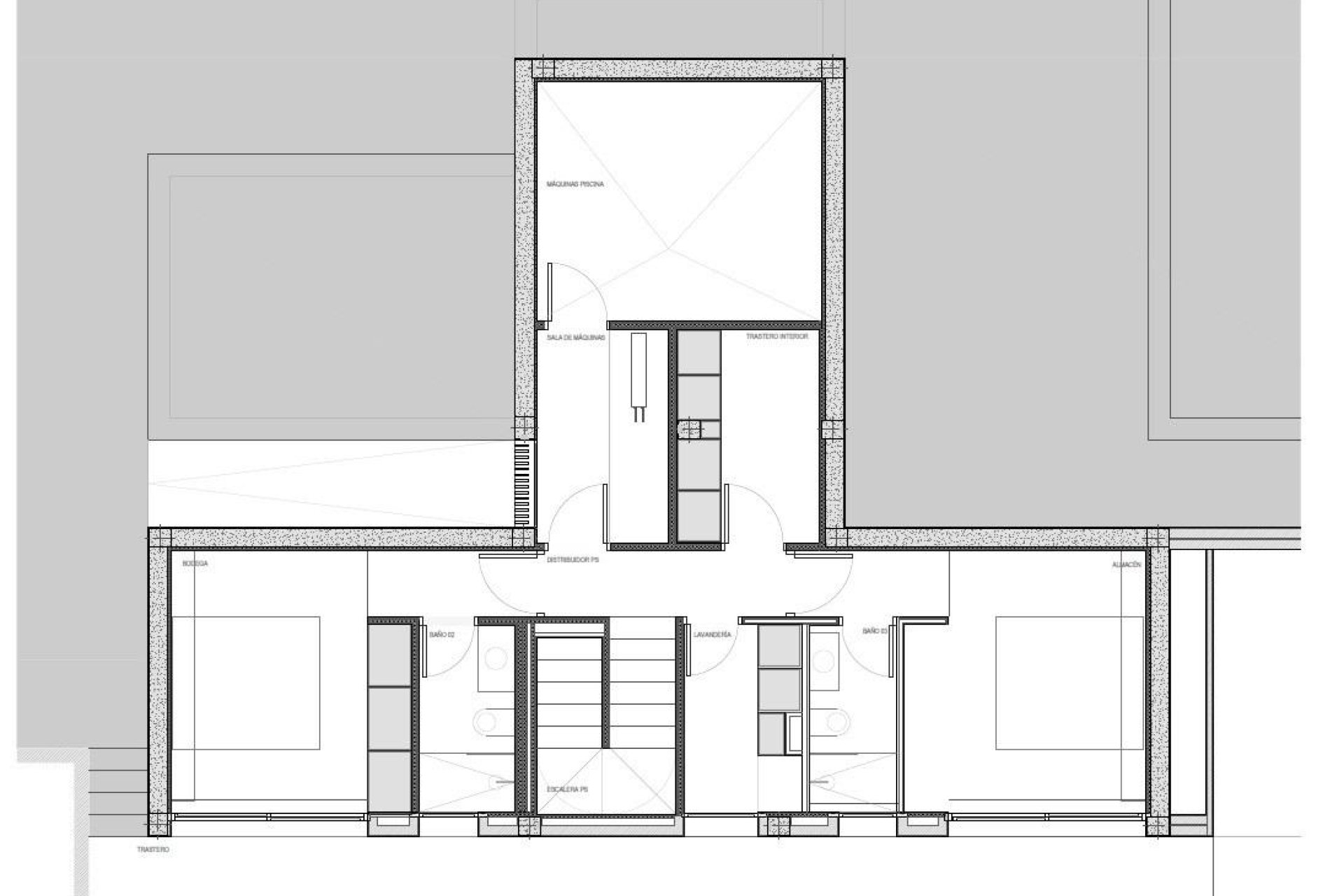
Spacious Layout Across Main Floor Basement and Solarium
The villa is distributed over a main floor, basement and rooftop solarium, offering generous living space and flexibility.
On the main floor, a welcoming entrance hall with built in wardrobe leads to two en suite bedrooms, including a master suite with elevable window doors opening to a Juliette balcony and terrace. The open plan living and dining area connects seamlessly to a covered pergola terrace and a private saltwater swimming pool.
The basement level features two additional en suite bedrooms with large windows, a flexible playroom or cinema room with water and electricity connections for a bar area, a fully equipped laundry room with Haier appliances and two technical storage rooms.
The rooftop solarium provides expansive outdoor space with panoramic sea views and is prepared for future solar panel installation. An outdoor kitchen, multiple storage lockers and Mediterranean style landscaped garden with automatic irrigation complete the exterior.
High End Features and Energy Efficiency
This villa stands out for its premium finishes and advanced installations, including:
Central kitchen island with integrated BOSCH appliances
Natural stone countertops indoors and outdoors
Underfloor heating pre installation
Mitsubishi aerothermal air conditioning system
Energy efficiency rating Class A
Pre installation for smart home system
Saltwater swimming pool with optional heating
Private parking for two vehicles
Large windows with sun protection glass maximize natural light while ensuring comfort and security.
Excellent Location and Distances
Polop center 2 km
La Nucia 4 km
Benidorm 12 km
Altea 10 km
Beaches 10 km
Villaitana Golf 14 km
Alicante Airport 65 km
Secure Your Dream Home in Polop
This exceptional key ready villa combines privacy, design and panoramic views in one of the most attractive inland areas of the Costa Blanca. Contact us today to arrange a private viewing and make this luxury villa in La Alberca Polop your new home.